Kitchen: Open Shelving
For this kitchen renovation the customers decided on open shelving.
The shelving was made from reclaimed ash wood.(completed August 2013)
The shelving was made from reclaimed ash wood.(completed August 2013)
Decks Renovations
James Plett:
(204) 794-6151
Rebuild Existing Deck
Basement development
On this project, our customers already had a bathroom previously developed and wanted to develop the rest of the basement. Together with the customer we came up with a layout design that suited their needs.
The design included 2 bedrooms, an office, pantry, and open area. Laminate flooring was installed. Breakaway post enclosures were designed to allow for adjustments if needed and provide a look the customers wanted. A total of 10 different shades of color were used to create a different feeling for each room. New windows were also installed.(completed June 2009)
![]() Ducting closed in | ![]() Post wrap |
![]() Multi colour | ![]() Post wrap cover removed |
Kitchen.--- 3 season sunroom
Kitchen renovation:
3 season sun room addition:
Kitchen renovation:

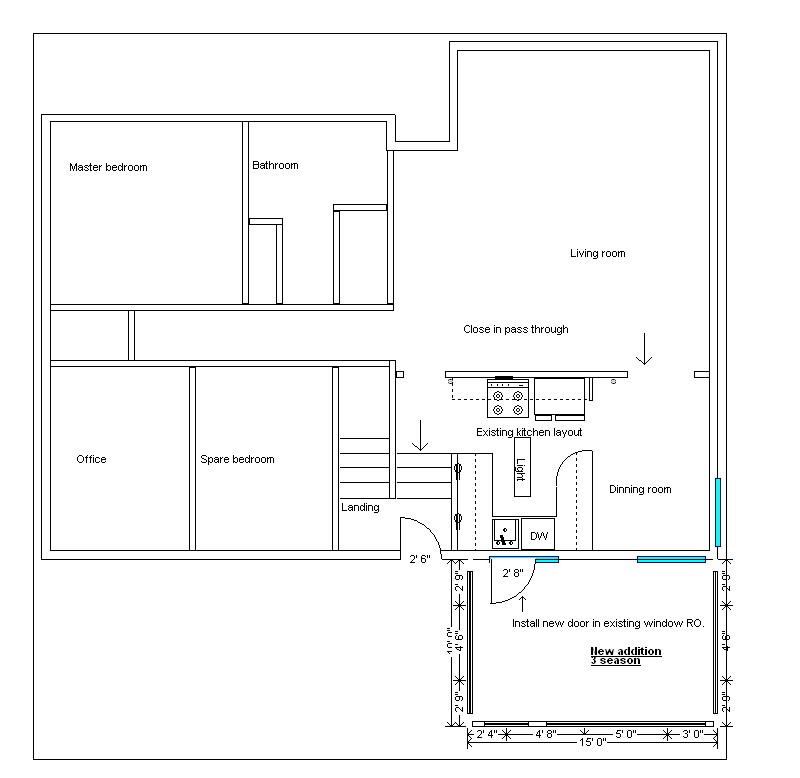
The main focus of this project was to make the kitchen roomier, functional and provide an access to a 3 season sun room. To accomplish this the existing dinning room and kitchen locations were flipped. The pass through from the living room to dinning room was closed in and new counter space, upper cabinets and lower drawer units installed on new wall space that was created. Stove relocated to west wall and sink moved further west to allow for an entrance into 3 season sun room.
The main focus of this project was to make the kitchen roomier, functional and provide an access to a 3 season sun room. To accomplish this the existing dinning room and kitchen locations were flipped. The pass through from the living room to dinning room was closed in and new counter space, upper cabinets and lower drawer units installed on new wall space that was created. Stove relocated to west wall and sink moved further west to allow for an entrance into 3 season sun room.
Cork flooring was installed in Kitchen/dinning room and stair leading down to back entry.

Acorns were found inside wall. Squirrels capitalized on the opportunity for a warm hiding place for their winter stores.
All possible rodent entry points were closed in when roof was re shingled and existing attic insulation was removed and new insulation added.(completed December 2011)
All possible rodent entry points were closed in when roof was re shingled and existing attic insulation was removed and new insulation added.(completed December 2011)
3 Season Sun Room:
Decks Renovations
James Plett:
(204) 794-6151
(204) 794-6151
Attic space development
HOUSE BLEND MINISTRIES
Attic space development for, House Blend Ministries.
The scope of this project is to turn the unused attic space into 3 bedrooms and 1 bathroom.
In order to make this possible a new staircase that meets current building code is needed.
To make the new staircase to code meant that a new dormer would have to be built to provide the
correct head room height that is needed between a stair and ceiling.(completed March 2012)
To learn more about, House Blend Ministries, click on the following
Link. House Blend Ministries.
Located in Beautiful West Broadway 15 years new home residential framing experience
Serving Winnipeg 7 years residential renovation experience
Attic space development for, House Blend Ministries.
The scope of this project is to turn the unused attic space into 3 bedrooms and 1 bathroom.
In order to make this possible a new staircase that meets current building code is needed.
To make the new staircase to code meant that a new dormer would have to be built to provide the
correct head room height that is needed between a stair and ceiling.(completed March 2012)
|
|
|
| ||||||||
|
|
|
|
To learn more about, House Blend Ministries, click on the following
Link. House Blend Ministries.
|
|
|
|
Located in Beautiful West Broadway 15 years new home residential framing experience
Serving Winnipeg 7 years residential renovation experience
Decks Renovations
James Plett:
(204) 794-6151
|
Subscribe to:
Comments (Atom)

















